本篇文章给大家谈谈旋转台结构图原理,以及旋转台图纸对应的知识点,希望对各位有所帮助,不要忘了收藏本站喔。
回转工作台是什么回转工作台的分类介绍
回转工作台是一种用于旋转和翻转物体的设备,广泛应用于工业生产和加工领域。回转工作台能够提高生产效率,简化操作流程,并且可以实现多角度多方位的工作需求。下面将从不同的角度对回转工作台进行分类介绍。结构分类 回转工作台可以根据其结构特点进行分类,常见的结构分类有单轴式回转工作台和多轴式回转工作台。
(图片来源网络,侵删)
回转工作台主要可以分为以下三类:光学转台:特点:具有独特的光学系统与玻璃或金属精密刻度盘,能够实现角度的高精度细分与放大。精度:分度精度可达±1″,通过目镜或光屏,操作者能精准读取角度值。数显转台:特点:通过安装在主轴上的精密圆光栅或圆感应同步器,将角度信息转化为数字显示。
超精密端面齿盘转台:利用一对经过精密对研的1440齿、720齿或360齿的端面齿盘分度定位,其分度精度最高可达±0.01〃,作精密角度计量用。
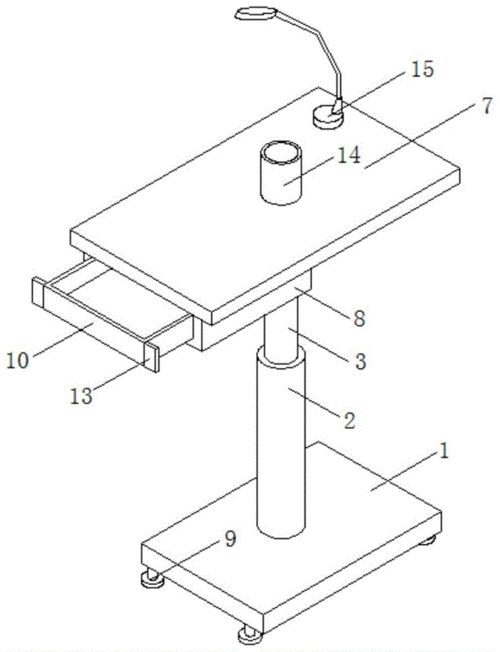
回转工作台--主要用于镗床、加工中心等,多用于盘类零件分度,少用于轴类零件。铣床附件。
(图片来源网络,侵删)
带有可转动的台面、用以装夹工件并实现回转和分度定位的机床附件,简称转台或第四轴。转台按功能的不同可分为通用转台和精密转台两类。
旋转工作台,或者回转工作台是一种具有分度功能的回转装置。 可以分为等分分度和任意分度两种。任意分度回转工作台, 一般是由伺服电机或步进电机驱动。 控制比较复杂,一般要用PLC或单片机,或其它工控设备控制。
旋转变压器工作原理
旋转变压器的工作原理是基于电磁耦合和磁通分布的正弦规律。以下是旋转变压器工作原理的详细解释:电磁耦合:当激磁电压加到旋转变压器的定子绕组时,通过电磁耦合,转子绕组会产生感应电势。磁通分布的正弦规律:旋转变压器在结构上保证了其定子和转子之间空气间隙内的磁通分布符合正弦规律。
(图片来源网络,侵删)
旋转变压器是一种高效的位置传感器,其软解码原理主要涉及到信号的承载、解调提取和角度计算。以下是关于旋转变压器及其软解码原理的详细解旋转变压器 工作原理:旋转变压器通过调整磁阻转子与定子之间的气隙,影响输出电压,从而反映转子角度。磁阻式旋变通过改变气隙磁阻实现转子位置的高精度反馈。
编码器与旋转变压器的比较:编码器与旋转变压器都是用于测量旋转角度或位置的重要传感器,但它们在原理、输出信号、输入信号、电子元件位置、典型应用以及相互替代性等方面存在显著差异。原理 编码器:通过每隔一段极短的时间产生一个脉冲来工作。
XZ旋转变压器工作原理
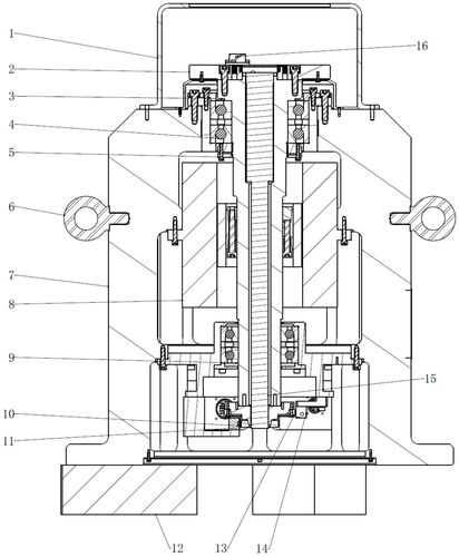
XZ旋转变压器是一种用于测量角度的精密设备。其工作原理基于定子绕组和转子绕组之间的交互作用。当定子绕组D1-D2连接交流电源激磁时,转子绕组Z1-Z2连接负载ZL(图1)。随着主令轴带动转子转动θ角度,转子各绕组中产生的感应电压形成了一种与转角θ成函数关系的输出电压。这里的k为定、转子绕组的有效匝数比,称为变比。
旋转变压器的工作原理主要涉及定子和转子的交互作用。当定子绕组D1-D2通过交流电源激磁,而转子绕组Z1-Z2连接负载ZL时,主令轴的转动使得转子绕组中产生感应电压。
旋转变压器原理图、XZ2与XZ4分别通过升速比为i(i=15~30)的升速器相连接。当主令轴带动粗通道的XZ1转过θ1角时,精通道的XZ3将转过iθ1角,XZ2与负载同轴,其转角为θ2时,XZ4的转角为 iθ2。粗通道的输出电压Uc1=kUr sin δ,精通道XZ4的输出电压为Uc2=kUrsin iδ,式中δ=θ1-θ2。
其输出,是随转子转角作某种函数变化的电气信号,通常是正弦、余弦、线性等。这些函数是最常见的,也是容易实现的。在对绕组做专门设计时,也可产生某些特殊函数的电气输出。但这样的函数只用于特殊的场合,不是通用的。60年代起,旋转变压器逐渐用于伺服系统,作为角度信号的产生和检测元件。
旋转餐桌的工作原理
1、旋转餐桌的工作原理首先,短短的数年时间,好多餐桌可以旋转已经被人们认为是饭店餐桌必备的功能。但是目前,还有中国大陆、港台以及东南亚部分地区是使用旋转餐桌最集中的地区。可是随着人们经济条件的改善,还有旋转餐桌进入家庭的普及率也越来越高。
2、转转桌(旋转餐桌)是一种现代化的餐桌,它的工作原理是通过电机驱动餐桌底座的旋转,使得餐桌可以自动旋转,让用餐的人可以方便地取用食物,而不必频繁地起身或者转身。旋转桌是一种常见的家具,也被广泛运用于办公室和学校等公共场所。
3、餐桌可以旋转的原因是为了方便人们用餐和交流。设计考量 餐桌旋转的设计源于对用餐体验的改善考虑。在传统的固定餐桌中,人们需要调整自己的位置才能更方便地取餐或交流,这有时会带来不便。为了让人们更轻松自如地用餐,设计者将旋转功能融入到餐桌中,使得餐桌成为一个可以围绕中心轴自由旋转的家具。
4、电动餐桌的工作原理是通过中心嵌有的制动电机和蜗轮装置,以及大小齿轮的协同作用,实现桌面转盘的匀速转动。以下是电动餐桌工作原理的详细解释:核心部件:制动电机和蜗轮装置:位于餐桌中心,是驱动桌面转盘转动的关键部件。
5、电动餐桌是一种创新的餐桌设计,它在大圆桌面中心安装了电动转盘。使用时,转盘能够根据设定自动低速旋转,极大地便利了用餐者夹取食物。其工作原理基于中心的几个制动电机和蜗轮装置,通过电机的制动作用,牵引大小齿轮带动桌面转盘,实现匀速转动。电动餐桌的桌芯主要采用实木或钢铁制造。
6、中国传统饭店:旋转餐桌在中国传统饭店中非常常见,符合多人聚餐的用餐习惯。欧美餐厅:在欧美一些餐厅中,旋转餐桌被用来增加用餐的趣味性,提升用餐体验。日本餐桌文化:在日本,旋转餐桌被用来增强同桌之间的交流,促进人与人之间的互动。
...原理!运用了什么物理知识,类似于我们常见的旋转台吗?
伽利略的钟摆原理是指:不论钟摆摆动幅度大些还是小些,完成一次摆动的时间是相同的。1583年伽利略发现摆的等时性。在意大利的比萨城里,有一个17岁的大学生伽利略,当时他正在学医。无意中,他观察到悬在天花板上的挂灯微微晃动。伽利略发现这个挂灯摆动逐渐平息的过程中,每次摆动所用的时间并不改变。这一发现引起了伽利略的思考。回家后,他继续研究,发现并提出了单摆的等时性。
把托盘天平放在水平台上,把游码放在标尺左端零刻线处。 调节横梁上的平衡螺母,使指针指在分度盘的中线处,这时横梁平衡。有些天平,只在横梁右端有一只平衡螺母。有些天平,在横左、右两端各有一只平衡螺母。它们的使用方法是一样的。
不倒翁告诉我们一个非常有用的物理知识,就是物体怎样才能平衡。放在地上的凳子,摆在桌面上的台灯都处于静止状态,在物理学上就叫做平衡,但是同学们是否注意到,同样是处于平衡状态的物体:一本书竖在桌子上,轻轻地用手一推,啪地一声便倒在桌子上,而不倒翁推倒了却一下又能站起来。
风力发电有这个专业,专业课一般有机械,电子,光电,空气动力学,机电一体化,电力,大气物理学,天文学,经典力学,系统工程。 风力发电知识-原理介绍 风力发电的原理,是利用风力带动风车叶片旋转,再透过增速机将旋转的速度提升,来促使发电机发电。把风能转变为电能是风能利用中最基本的一种方式。
关于旋转台结构图原理和旋转台图纸的介绍到此就结束了,不知道你从中找到你需要的信息了吗 ?如果你还想了解更多这方面的信息,记得收藏关注本站。
本文可能通过AI自动登载或用户投稿,文章仅代表原作者个人观点。本站旨在传播优质文章,无商业用途。如侵犯您的合法权益请联系删除。




