本篇文章给大家谈谈看建筑图纸有哪些技巧呢,以及看建筑图纸的技巧对应的知识点,希望对各位有所帮助,不要忘了收藏本站喔。
建筑图纸上节点图纸怎么看
1、节点图纸通常包括:节点编号、节点详图、尺寸标注、材料说明等部分。其中,节点详图是核心部分,展示了节点的具体构造方式。尺寸标注则帮助我们了解各部件之间的相对位置和大小关系。材料说明则提供了施工所需材料的信息。 掌握识图的基本方法 从整体到局部:先了解整个建筑的概况,再聚焦到具体的节点部位。
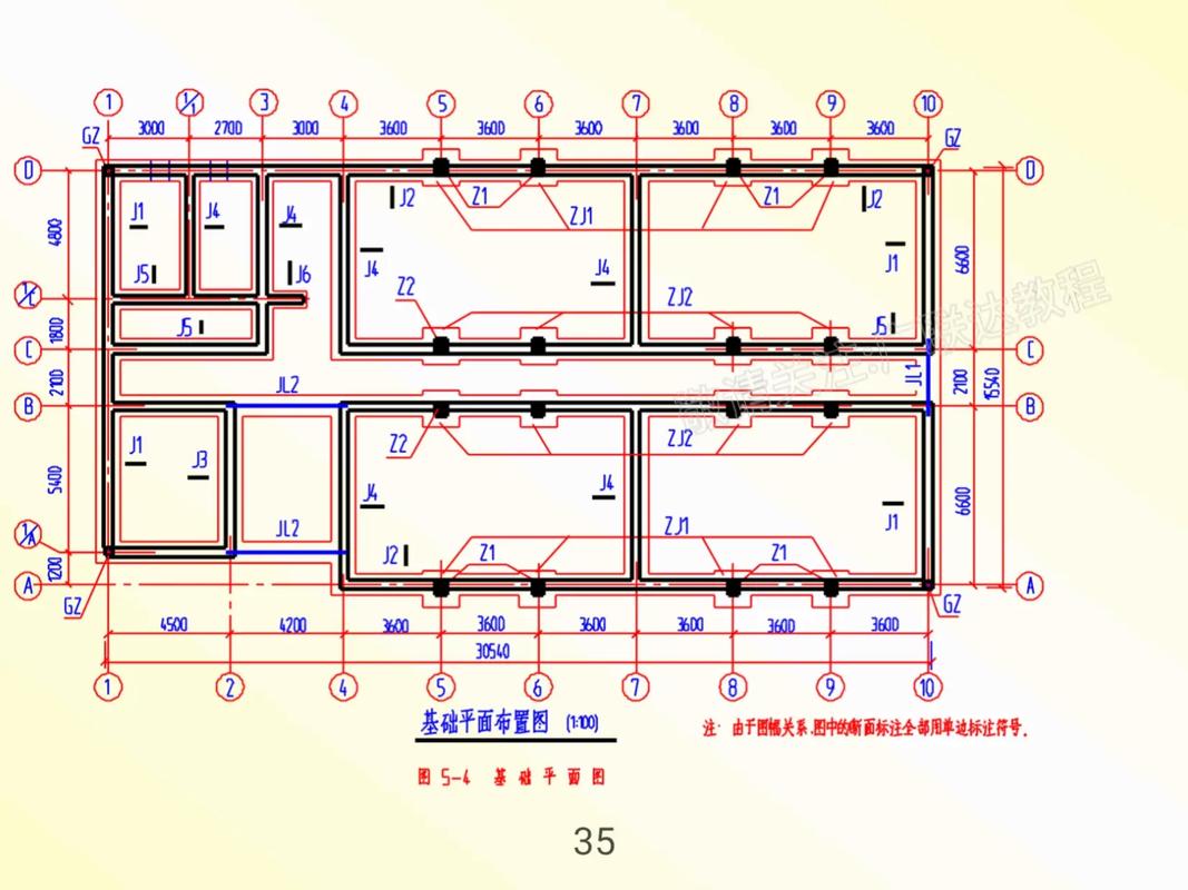
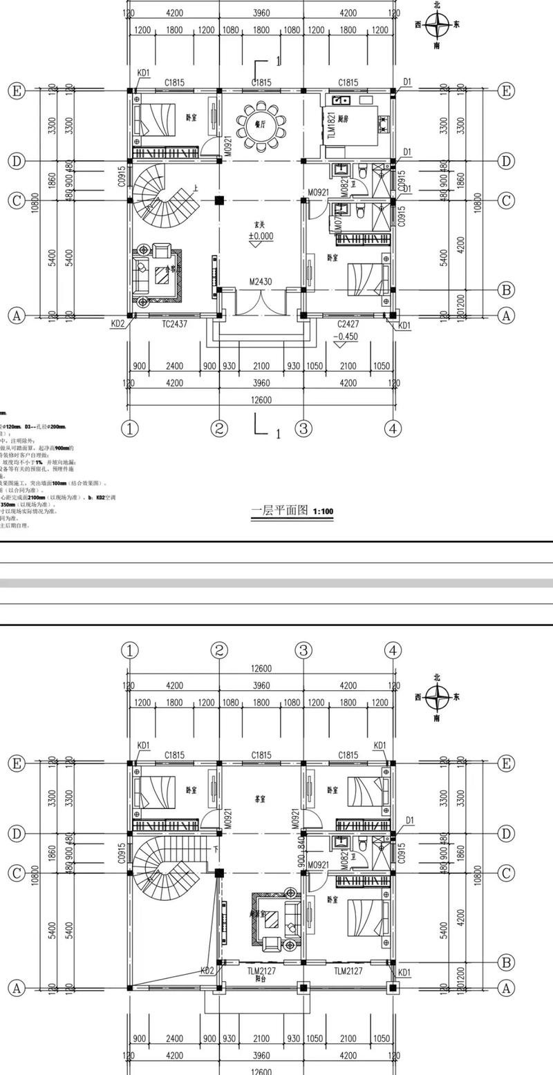
(图片来源网络,侵删)
2、要理解建筑图纸上的节点图纸,首先要识别索引符号,确定其代表的部位。这些索引符号通常在建施图或结施图中出现,例如箭头指向的节点区域。节点详图的剖面具有明确的方向性,例如,剖面线的方向不能随意颠倒。
3、首先,节点详图都是从整图上攫取某个部位而展开描绘的,必须先弄清楚它表示的是哪一个部位。在建施图或结施图上,凡是需要另做详图的地方,都会给出索引符号。符号如图:其中,引线所指就是节点处。第二,节点详图的剖面(截、断面)有方向性。
4、熟悉图纸目录和说明:仔细阅读节点图的目录和说明,了解图纸的编号、比例尺及相关的施工要求。逐一分析节点:逐个查看节点图,理解各节点的结构形式、构造方法和施工顺序。 节点图的重点观察内容:材料标注:注意图中标注的材料型号、规格,了解使用的材料是否符合设计要求。
(图片来源网络,侵删)
10个技巧教你快速看懂建筑施工图纸
1、剖面图要看位置,详图要看索引。土建和安装图纸要对清洞、沟槽等。抓住图纸关键 平面图中要关注门的开启方向、轴线的位置、房屋的朝向和墙厚。立面图中要掌握门窗洞口的标高尺寸。剖面图中要关注楼层标高、屋顶标高及室内洞口、内门标高等。结构图中要掌握基础、墙、梁、柱、板等的设计要求。
2、图纸到手先别急,设计说明要细读;平面立面剖面图,循序渐进有次序;关键尺寸记心上,图纸关系要理清;工程特点要了解,图表对照无差错;一丝不苟看图纸,三个结合不可少;看图技巧要掌握,整体概念最重要。
3、三个结合。学习土建图时,结合其他专业图纸,如总平面图、结构图、安装图等,以全面理解工程全貌。做到建筑与结构结合、室内与室外结合、土建与安装结合。掌握技巧。看图纸有技巧可循,如随手记录关键信息,先粗略后详细阅读,反复对照找出规律,图上标注重要信息,反复练习加深记忆。整体概念。
(图片来源网络,侵删)
4、抓住图纸关键点 平面图:确认门的开启方向、轴线位置(正中或偏中)、房屋朝向及墙厚。立面图:掌握门窗洞口标高,避免立皮数杆和窗台预留错误。剖面图:明确楼层、屋顶标高及室内洞口、楼地面做法。结构图:了解基础、墙、梁、柱、板的设计要求、尺寸及材料衔接关系。
记住这十点,教你如何更快看懂建筑施工图纸!(附识图口诀)
1、附图口诀:图纸到手先别急,设计说明要细读;平面立面剖面图,循序渐进有次序;关键尺寸记心上,图纸关系要理清;工程特点要了解,图表对照无差错;一丝不苟看图纸,三个结合不可少;看图技巧要掌握,整体概念最重要。
2、口诀:轴线是基准,编号要相吻;标高要交圈,高低要相等;剖面看位置,详图详索引;如用标准图,引出线标明;要求和做法,快把说明拿;土建和安装,对清洞、沟、槽;材料和标准,有关图中查;建筑和结构,前后要对照。0抓住关键 技巧:在看施工图时,抓住每张图纸中的关键部分。
3、记住这十点,教你如何更快吃透施工图!(附识图口诀)把握主次 拿到一份图纸后,应有条不紊地按顺序进行阅读。
4、记住尺寸。工程尺寸是设计与施工的基础。记住关键尺寸如开间、进深、长宽、层高等,对于加深对设计的理解和指导施工至关重要。
5、首先要认真、仔细、细心的去看,处理一点点的错误,都会影响施工。从上向下看,从左向右看。从外往里看,从大往小看,从粗往西看。图样说明对照看,建施结施结合看,设备图纸参照看。先看全局基本图,再看局部详图。
帮你吃透建筑施工图纸的十大技巧!
...俗话说:好记性不如烂笔头。要养成每天写施工日志的习惯,记录每天的施工情况及现场有关数据,...能熟练操作测量仪器,水准仪,经纬仪,全站仪,这些仪器都要练到炉火纯青的地步。
从头至尾,施工单位不可能一点问题没有,一般都会发现较大问题,要抓住原则性问题不放,借以让施工单位养成严格按图纸和规范控制的习惯。也可以彰显监理的作用,提高监理威信。 (5)要掌握好监理技巧。
对完善设计和施工方案的建议。2)专业审查A .各单位在设计交底的基础上,应分别组织有关人员分专业、分工种细读文件,进一步吃透设计意图,质量标准及技术要求;B .针对本专业的审查内容,详细核对图纸、提出问题,确定会审重点。
施工图纸会审应由建设单位负责组织并记录。图纸会审是指工程各参建单位(建设单位、监理单位、施工单位等相关单位)在收到施工图审查机构审查合格的施工图设计文件后,在设计交底前进行全面细致的熟悉和审查施工图纸的活动。
看建筑图纸有哪些技巧
1、看建筑图纸的技巧主要包括以下几点:熟悉建筑材料 首先要对图纸中可能出现的建筑材料有一定的了解。建筑材料是构成建筑的基础,熟悉它们可以帮助你更快地理解图纸中的符号和标注,避免在阅读图纸时感到茫然。
2、看建筑图纸的技巧主要包括以下几点:熟悉建筑材料:首先要对图纸中可能出现的建筑材料有所了解。这样,在查看图纸时,就能更快地理解材料的使用和布局,避免因不熟悉材料而感到茫然。结合实践理解图纸:跟随施工的工人到工地上实践,将图纸与实际施工相结合,有助于更好地理解图纸中的细节和规律。
3、多看多练:平时要多看图纸,通过不断的练习来提高自己的看图能力。请教他人:遇到不懂的地方,要及时请教专业人士或同事,不要害怕提问,通过交流可以更快地解决问题。把握整体,注重细节:先看大体脉络:在看图纸时,要先把握整体的结构和布局,明白建筑的走向和主要功能区域。
4、在看土建施工图时,必须注意结合学习其他专业图纸。建筑与结构结合,看建筑图时要与结构图互相对照着看。室内与室外结合,看单位工程施工图时要相应地看总平面图。土建与安装结合,看土建图时要结合看本工程的安装图。掌握技巧 看图纸需要掌握一些技巧以提高效率。
看建筑图纸有哪些技巧呢的介绍就聊到这里吧,感谢你花时间阅读本站内容,更多关于看建筑图纸的技巧、看建筑图纸有哪些技巧呢的信息别忘了在本站进行查找喔。
本文可能通过AI自动登载或用户投稿,文章仅代表原作者个人观点。本站旨在传播优质文章,无商业用途。如侵犯您的合法权益请联系删除。




